Options for Line drawings
Moderators: Jason Susnjara, Larry Epplin, Clint Buechlein, Scott G Vaal, Jason Susnjara, Larry Epplin, Clint Buechlein, Scott G Vaal
-
Chris B Campbell
- Senior Member
- Posts: 114
- Joined: Fri, Jul 29 2005, 4:00PM
- Location: Helendale, CA.
Options for Line drawings
Hey All,
Need some help on a line drawing program. I am getting into a situation were my cabinets need to be approved by the wood institute and another agency. I need to submit drawings that include Plan, Elevation, cross sections, dialogs, etc. I would rather not have to purchase a 5000.00 solid works type of program, at least not yet. I was thinking something like turbo cad or similar. Anyone have any experience with simple programs that will fill my needs (Professional looking shop drawings).
Thanks Guys, appreciate your input,
Chris
Need some help on a line drawing program. I am getting into a situation were my cabinets need to be approved by the wood institute and another agency. I need to submit drawings that include Plan, Elevation, cross sections, dialogs, etc. I would rather not have to purchase a 5000.00 solid works type of program, at least not yet. I was thinking something like turbo cad or similar. Anyone have any experience with simple programs that will fill my needs (Professional looking shop drawings).
Thanks Guys, appreciate your input,
Chris
-
Will Williamson
- Guru Member
- Posts: 452
- Joined: Thu, Dec 08 2005, 6:10PM
- Company Name: Williamson Finewoodwork
- Country: UNITED STATES
- Location: Capac MI
- Contact:
Re: Options for Line drawings
Vectric VCarve Pro
Will
http://www.willmade.com
KEG/Intel Core i 7 CPU K875 @ 2.93 GHZ/12G Ram
Dual boot XP PRO/Windows 7 Nvidia Quatro 600 1Gig Ram
http://www.willmade.com
KEG/Intel Core i 7 CPU K875 @ 2.93 GHZ/12G Ram
Dual boot XP PRO/Windows 7 Nvidia Quatro 600 1Gig Ram
-
Mark McCallum
- Guru Member
- Posts: 551
- Joined: Thu, Jun 16 2005, 7:53PM
- Location: Sydney Aust
Re: Options for Line drawings
Hi Chris
I also use Vectric Aspire but I am not proficient with it.
I am more biased towards viacad to do technical workshop type drawings.
With all these programs, of course there is the learning time cost.
I do presume that you are aware that there is the line drawing editor in ecabs?
I personally find it hard to use, I wish it could be tweaked some more to make it more user friendly so we could do professional drawings easily.
I estimate it would save us one hundred to five hundred hours or more of double drawing time a year (small 5 person joinery) Plus probably eliminate errors that occur because transferring to and from different software creates errors. In eCabs it live updates which helps eliminate errors.
I could be wrong but perhaps the line drawing side of eCabs works better for cookie cutter type joinery where your team gets used to what to expect,? where as if you want drawings for external type use its hard to mold for presentation, I don't know
Other users could perhaps give their perspective?.
We use viacad pro. Its a one off licence that seems to work until windows OS changes so much it doesn't work anymore. I'm on V10 which has lasted about 4 years and still works.
Also I believe with the latest release( 14 ) You can run it on 3 machines (You would need to confirm that)
I do believe that the same parent company (Punch software or broderbund ) that owns Tubo cad also owns Via cad and they are quite simialar.
I do a lot of DXFS in Viacad to import into contour in the part editor, (Contour is pretty good once you get used to it but Viacad is an added useful and flexible tool.)
I like that you can do 3d modeling in viacad as well. Viacad is more orientated along an engineering technical approach, If you want to get into pattern making projects, molding type jobs, where as Aspire originated from a sign-writing, trophy, organic modeling orientation with a engineering back end and tool pathing features a bit like Ecabs has.
Except Ecabs is built for our Thermwoods and it is just a great screen to machine solution for cabinetmakes.
Aspire was really worth the money to me as it allows you to do a lot of arty sort of stuff that you cant do in ecabs and I sometimes import models from viacad into aspire for the tool pathing capabilities, A few decent jobs and it pays for itself and it seems very stable.
We dont do any technical type drawings in aspire because we are more proficient in Viacad.
I have attached a screen shot of the sort of drawings we do. That one is one of a more detailed type of job, but we do at least a floor plan and one or two elevations generally.
Everything is drawn in one to one size. We just drag a border around the parts we want to Print or save as PDF, or turn into Jpegs to put into PDF page format in another program like MS word or one of those PDF creating programs.
Hope it helps, just my perspective, Just my two cents.
I also use Vectric Aspire but I am not proficient with it.
I am more biased towards viacad to do technical workshop type drawings.
With all these programs, of course there is the learning time cost.
I do presume that you are aware that there is the line drawing editor in ecabs?
I personally find it hard to use, I wish it could be tweaked some more to make it more user friendly so we could do professional drawings easily.
I estimate it would save us one hundred to five hundred hours or more of double drawing time a year (small 5 person joinery) Plus probably eliminate errors that occur because transferring to and from different software creates errors. In eCabs it live updates which helps eliminate errors.
I could be wrong but perhaps the line drawing side of eCabs works better for cookie cutter type joinery where your team gets used to what to expect,? where as if you want drawings for external type use its hard to mold for presentation, I don't know
We use viacad pro. Its a one off licence that seems to work until windows OS changes so much it doesn't work anymore. I'm on V10 which has lasted about 4 years and still works.
Also I believe with the latest release( 14 ) You can run it on 3 machines (You would need to confirm that)
I do believe that the same parent company (Punch software or broderbund ) that owns Tubo cad also owns Via cad and they are quite simialar.
I do a lot of DXFS in Viacad to import into contour in the part editor, (Contour is pretty good once you get used to it but Viacad is an added useful and flexible tool.)
I like that you can do 3d modeling in viacad as well. Viacad is more orientated along an engineering technical approach, If you want to get into pattern making projects, molding type jobs, where as Aspire originated from a sign-writing, trophy, organic modeling orientation with a engineering back end and tool pathing features a bit like Ecabs has.
Except Ecabs is built for our Thermwoods and it is just a great screen to machine solution for cabinetmakes.
Aspire was really worth the money to me as it allows you to do a lot of arty sort of stuff that you cant do in ecabs and I sometimes import models from viacad into aspire for the tool pathing capabilities, A few decent jobs and it pays for itself and it seems very stable.
We dont do any technical type drawings in aspire because we are more proficient in Viacad.
I have attached a screen shot of the sort of drawings we do. That one is one of a more detailed type of job, but we do at least a floor plan and one or two elevations generally.
Everything is drawn in one to one size. We just drag a border around the parts we want to Print or save as PDF, or turn into Jpegs to put into PDF page format in another program like MS word or one of those PDF creating programs.
Hope it helps, just my perspective, Just my two cents.
-
Chris B Campbell
- Senior Member
- Posts: 114
- Joined: Fri, Jul 29 2005, 4:00PM
- Location: Helendale, CA.
Re: Options for Line drawings
Thank You guys for the response. Our situation is I need shop drawings submitted to WIC & AWIS for approval of government jobs. I spent a bunch of time trying to make ECabs line drawing editor work, really pain!
I was looking at your suggestions of Viacad & Aspire. I found Punch! ViaCAD Pro v10 for Windows PC on Amazon. I beleave that is what your suggesting.
Thanks Again,
Chris
I was looking at your suggestions of Viacad & Aspire. I found Punch! ViaCAD Pro v10 for Windows PC on Amazon. I beleave that is what your suggesting.
Thanks Again,
Chris
-
Mark McCallum
- Guru Member
- Posts: 551
- Joined: Thu, Jun 16 2005, 7:53PM
- Location: Sydney Aust
Re: Options for Line drawings
Hi Chris.
Yes. That is the one.
However, I would buy version 14 if you can, only because it will probably last you better. I am just starting to get a few little inconveniences since windows went from 10 to 11.
This is just the system we use and it works for us, but you have to work out if it will suit your workflow.
I'm not sure if its allowed to post these links so Clint, please remove if its against the law
They have just been releasing the latest versions and they are on promotional release for a few days.
Viacad
Use Coupon Code: PCINT20 .saves 20%
Offer Expires on May 01, 2023
https://www.punchcad.com/punchcad-v14?u ... dium=email
Turbocad
https://www.turbocad.com/turbocad-windo ... dium=email
To order, visit Turbocad.com or Imsidesign.com
Need help with order: call:1.800.833.8082, +1.415.483.8000 (outside the US)
6 am - 5 pm Pacific Time, M-F.
Please reference this email offer when calling.
IF you ring them ,Just tell them you received a promotional email.... They might ask which email, but that is your bridge to cross.
Good luck with the quotes or bids.
Yes. That is the one.
However, I would buy version 14 if you can, only because it will probably last you better. I am just starting to get a few little inconveniences since windows went from 10 to 11.
This is just the system we use and it works for us, but you have to work out if it will suit your workflow.
I'm not sure if its allowed to post these links so Clint, please remove if its against the law
They have just been releasing the latest versions and they are on promotional release for a few days.
Viacad
Use Coupon Code: PCINT20 .saves 20%
Offer Expires on May 01, 2023
https://www.punchcad.com/punchcad-v14?u ... dium=email
Turbocad
https://www.turbocad.com/turbocad-windo ... dium=email
To order, visit Turbocad.com or Imsidesign.com
Need help with order: call:1.800.833.8082, +1.415.483.8000 (outside the US)
6 am - 5 pm Pacific Time, M-F.
Please reference this email offer when calling.
IF you ring them ,Just tell them you received a promotional email.... They might ask which email, but that is your bridge to cross.
Good luck with the quotes or bids.
-
Mark McCallum
- Guru Member
- Posts: 551
- Joined: Thu, Jun 16 2005, 7:53PM
- Location: Sydney Aust
Re: Options for Line drawings
PS to the above.
Here is a link to the printing program we use to save the DWG's or DXF's from Viacad.
It allows you to save them as JPEGS or PDFs as required directly to folders on your computer. Normal printers sometimes don't have the aditional file formats to save as.
https://tools.pdf24.org/en/creator
I don't know how Turbocad handles the exporting of file formats.
Here is a link to the printing program we use to save the DWG's or DXF's from Viacad.
It allows you to save them as JPEGS or PDFs as required directly to folders on your computer. Normal printers sometimes don't have the aditional file formats to save as.
https://tools.pdf24.org/en/creator
I don't know how Turbocad handles the exporting of file formats.
-
Chris B Campbell
- Senior Member
- Posts: 114
- Joined: Fri, Jul 29 2005, 4:00PM
- Location: Helendale, CA.
Re: Options for Line drawings
Thank You guys, I really appreciate your input and experience.
Chris
Chris
-
Chris B Campbell
- Senior Member
- Posts: 114
- Joined: Fri, Jul 29 2005, 4:00PM
- Location: Helendale, CA.
Re: Options for Line drawings
Did the ViaCADv142D3D i figured the 2D program would suffice but having the 3D option in my back pocket is a good idea.
Downloaded the PDF24... Everyone should have this!
THANK YOU AGAIN,
cHRIS
Downloaded the PDF24... Everyone should have this!
THANK YOU AGAIN,
cHRIS
-
Chris B Campbell
- Senior Member
- Posts: 114
- Joined: Fri, Jul 29 2005, 4:00PM
- Location: Helendale, CA.
Re: Options for Line drawings
Mark,
Is it possable to take a cabinet that was generated in ecabs & import it to Viacad?
Thanks, Chris
Is it possable to take a cabinet that was generated in ecabs & import it to Viacad?
Thanks, Chris
-
Mark McCallum
- Guru Member
- Posts: 551
- Joined: Thu, Jun 16 2005, 7:53PM
- Location: Sydney Aust
Re: Options for Line drawings
Yes, you can import elevations or plan views.
There are a couple of ways i can think of.
I will outline the cabinet one, but once you have that, you can do it from custom Layout.
1: put cabinet into cabinet / assembly editor
2: If you want internal view of shelves or drawers
In construction settings set the left or right end with a bottom inset, Say an end height of 900mm Inset 899, Just so you don't lose your drawer boxes and drawer fronts.
3: Select line drawing editor, Next to the red C in the top bar.
4: Select take cabinet .hit OK
5 In LDE use the Green select cabinet.
6: right click select rotate dialogue.
7: rotate in 90 degre increments until you get the view you want. (If if is not in the x,y, or z plane it wont export properly for me)
8: Right click again, select export to DXF.
9: save to folder.
10: In Viacad select the file menu top left, drop down, select import
11: Import type DWG/DXF. In Import type choose inches, Don't tick explode blocks, Tick the others. Hit OK
12: find where you saved the cabinet DXF to and import it.
You can now copy and drag the images around as you like.
There will be a lot of duplicate lines. I think Ecabs sort of takes an Xray picture and every line in the front and back of the cabinet gets included.
See if your version of viacad has a remove duplicates, Could be under the modeling tools, Not sure if it's an advanced feature, but even if it doesn't it still prints okay.
Sometimes I think the wall view in eCabs custom layout is easier to read than taking it to the LDE. If we could tweak a few things in there it would be good. For certain jobs just taking a screen shot of that with the windows sniping tool works well.
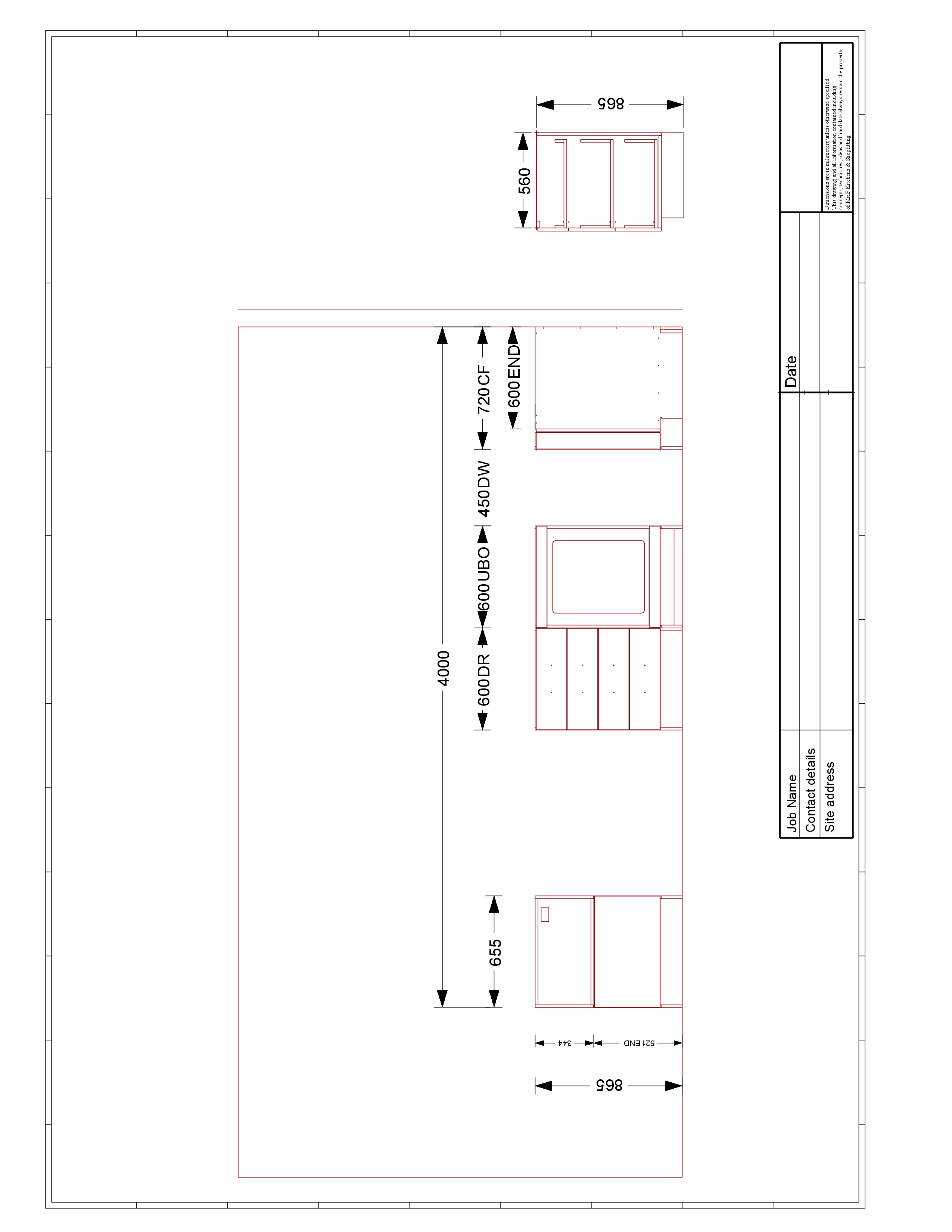
The attached picture was exported from eCabs and dimensioned in Viacad
Hope that helps
Mark
There are a couple of ways i can think of.
I will outline the cabinet one, but once you have that, you can do it from custom Layout.
1: put cabinet into cabinet / assembly editor
2: If you want internal view of shelves or drawers
In construction settings set the left or right end with a bottom inset, Say an end height of 900mm Inset 899, Just so you don't lose your drawer boxes and drawer fronts.
3: Select line drawing editor, Next to the red C in the top bar.
4: Select take cabinet .hit OK
5 In LDE use the Green select cabinet.
6: right click select rotate dialogue.
7: rotate in 90 degre increments until you get the view you want. (If if is not in the x,y, or z plane it wont export properly for me)
8: Right click again, select export to DXF.
9: save to folder.
10: In Viacad select the file menu top left, drop down, select import
11: Import type DWG/DXF. In Import type choose inches, Don't tick explode blocks, Tick the others. Hit OK
12: find where you saved the cabinet DXF to and import it.
You can now copy and drag the images around as you like.
There will be a lot of duplicate lines. I think Ecabs sort of takes an Xray picture and every line in the front and back of the cabinet gets included.
See if your version of viacad has a remove duplicates, Could be under the modeling tools, Not sure if it's an advanced feature, but even if it doesn't it still prints okay.
Sometimes I think the wall view in eCabs custom layout is easier to read than taking it to the LDE. If we could tweak a few things in there it would be good. For certain jobs just taking a screen shot of that with the windows sniping tool works well.
The attached picture was exported from eCabs and dimensioned in Viacad
Hope that helps
Mark
-
Chris B Campbell
- Senior Member
- Posts: 114
- Joined: Fri, Jul 29 2005, 4:00PM
- Location: Helendale, CA.
Re: Options for Line drawings
That worked... Lot to learn here 
Thank You
Thank You
-
Chris B Campbell
- Senior Member
- Posts: 114
- Joined: Fri, Jul 29 2005, 4:00PM
- Location: Helendale, CA.
Re: Options for Line drawings
Hi Mark,
Been working on this today, My drawing looks like yours. Cabinets have that reddish haze while the dimension lines are a sharp crisp black. When I go to print I only get the dimension lines? Am I missing something? I have been through the menu & can not find anything that would change these lines to make them printable. I tried to take the image and convert to PDF using PDF24 but it would not accept the drawing & ViaCad does not allow me to save as a .DXF or any other type of file.
Really appreciate your help with this,
Chris
Been working on this today, My drawing looks like yours. Cabinets have that reddish haze while the dimension lines are a sharp crisp black. When I go to print I only get the dimension lines? Am I missing something? I have been through the menu & can not find anything that would change these lines to make them printable. I tried to take the image and convert to PDF using PDF24 but it would not accept the drawing & ViaCad does not allow me to save as a .DXF or any other type of file.
Really appreciate your help with this,
Chris
-
Chris B Campbell
- Senior Member
- Posts: 114
- Joined: Fri, Jul 29 2005, 4:00PM
- Location: Helendale, CA.
Re: Options for Line drawings
Got It. Had to make a border that was 8X11 copied & pasted cabinets they were HUGE compared to border Scaled the cabinets to a .10 to fit inside border and good to go.

- Kerry Fullington
- Wizard Member
- Posts: 4740
- Joined: Mon, May 09 2005, 7:33PM
- Company Name: Double E Cabinets
- Country: UNITED STATES
- Location: Amarillo, TX
Re: Options for Line drawings
Chris,
Mark and I have talked about this in the past and I don't have a solution, but I still don't see why you wouldn't do most of this in the Line Drawing Editor.
Use some print to pdf drivers if you need to work in architectural size documents. I use Bluebeam Revu.
Drawing cabinets twice is just too much work and too easy to make mistakes.
I know that commercial submittals are tough, but commercial builders won't be truly happy with anything less than architectural drawings in AutoCad.
We don't do commercial work so I only have one job I have done that had to get government approval. I did the submittal in eCabinets and we still managed to get the job.
HERE is the submittal if you would like to have a look.
I want something that I can throw some boxes in a room to get a design layout for approval in just a few minutes. I have tried several like Home Designer Pro, Sketchup, and I have been playing with Blender. All of them take a lot of time to develop libraries to be able to show cabinets the way we build them, and then I have to re-draw everything to cut list it.
For now, I still do everything in eCabinets.
Mark and I have talked about this in the past and I don't have a solution, but I still don't see why you wouldn't do most of this in the Line Drawing Editor.
Use some print to pdf drivers if you need to work in architectural size documents. I use Bluebeam Revu.
Drawing cabinets twice is just too much work and too easy to make mistakes.
I know that commercial submittals are tough, but commercial builders won't be truly happy with anything less than architectural drawings in AutoCad.
We don't do commercial work so I only have one job I have done that had to get government approval. I did the submittal in eCabinets and we still managed to get the job.
HERE is the submittal if you would like to have a look.
I want something that I can throw some boxes in a room to get a design layout for approval in just a few minutes. I have tried several like Home Designer Pro, Sketchup, and I have been playing with Blender. All of them take a lot of time to develop libraries to be able to show cabinets the way we build them, and then I have to re-draw everything to cut list it.
For now, I still do everything in eCabinets.
