
LSAM > Specifications

Printing and trimming on the same machine.
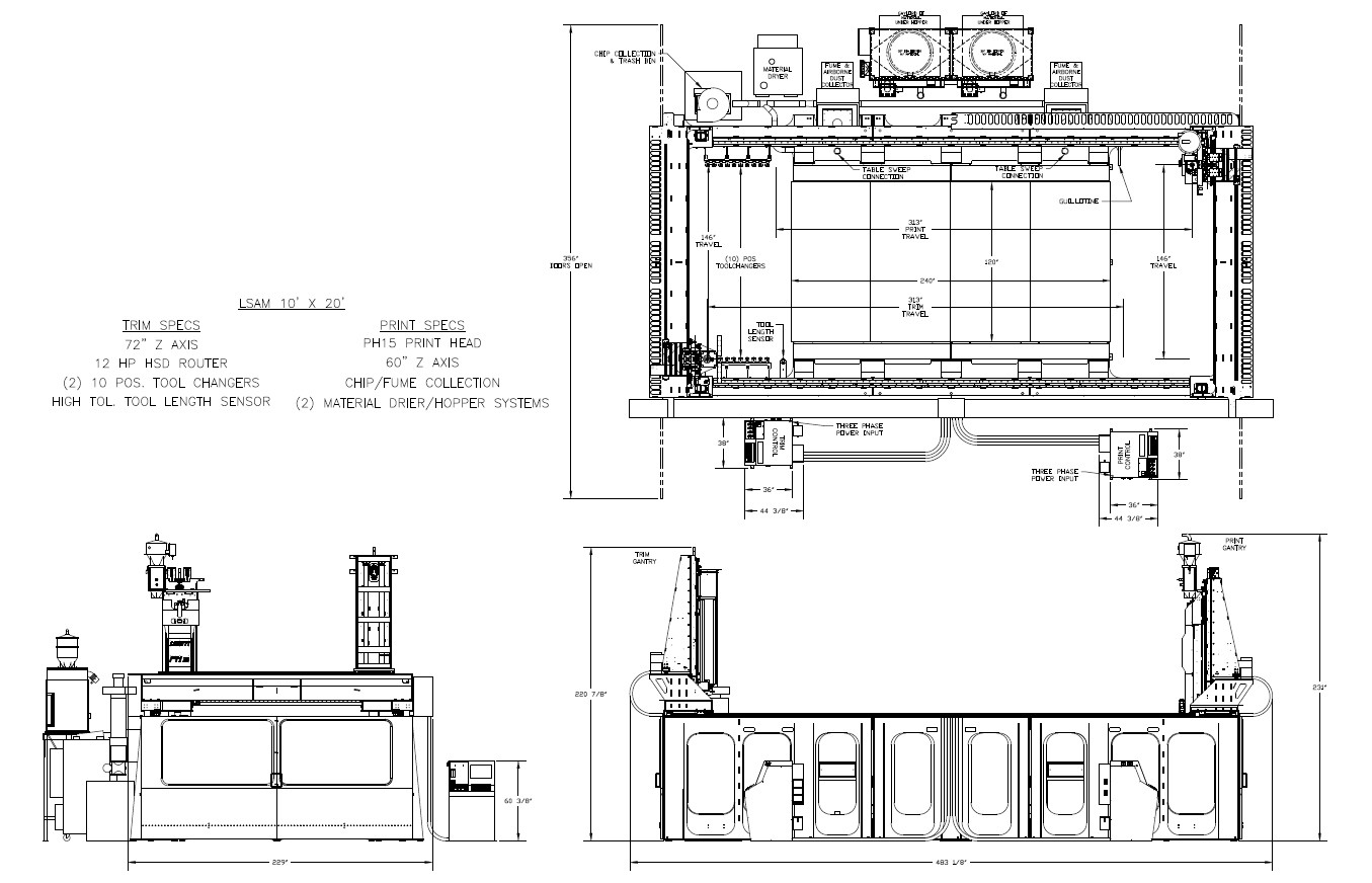
Dimensions (click for larger size):
Configuration:
High wall, dual gantry operating over a fixed work table
Construction:
Rigid engineered steel structure using tabbed steel plate and an aluminum jig plate table top
Envelope Size:
Printing – 10ft wide, 5ft high up to 100ft long
Trimming – 10ft wide, 6ft high and same length as the printing envelope
Simultaneous Operation:
Both the Print Gantry and the Trim Gantry can operate simultaneously, printing on one side of the table while trimming on the other side. An automatic software “Reservation” system allows each gantry to reserve a portion of the table for the program it is currently running, maximizing flexibility while eliminating the possibility of the gantries contacting each other.
Print Head configuration:
Vertically mounted servo controlled advanced design print head melts thermoplastic material and precisely meters it through a heated print nozzle where a servo controlled wheel compresses and fuses the melted material to the structure being printed
Available Melt Cores:
-40mm – a patented 40mm high speed extrusion screw coupled to a corresponding melt pump and deposition head. This standard configuration processes over 200 pounds of material an hour, depending on the specific material and is suitable for parts that have a print layer lap length of up to 200 feet while printing a standard bead that is .200 inch thick and .830 inch wide.
-60mm –can process 50% more than the 40mm Melt Core
-70mm – operated at rates of over 500 pounds per hour, which Thermwood expects to increase
Notable Features: