hello all
please suggest where are we giong wrong or its a bug in CN again
iam attaching every file now
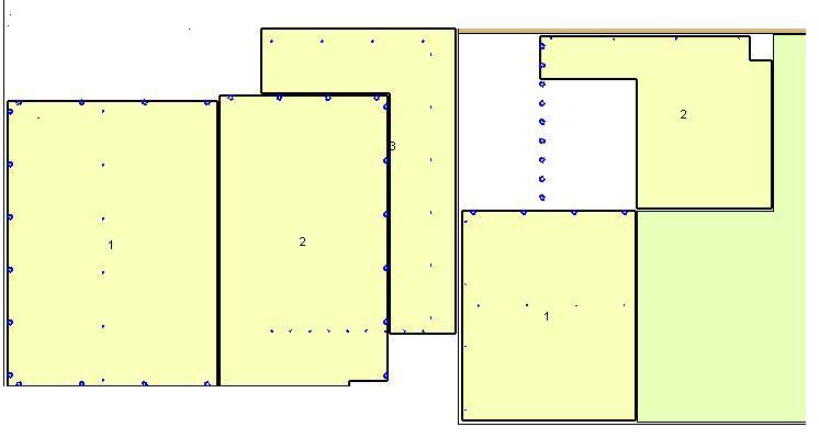
kd fastner holes nesting on 2 pieces
Moderators: Mike Iubelt, Jason Susnjara, Larry Epplin, Clint Buechlein, Mike Iubelt, Jason Susnjara, Larry Epplin, Clint Buechlein
-
mohan kommineni
- Junior Member
- Posts: 97
- Joined: Fri, Mar 20 2009, 8:01AM
- Company Name: ADP STORE FIXTURES
- Country: AUSTRALIA
- Location: PERTH-AUSTRALIA
kd fastner holes nesting on 2 pieces
- Attachments
-
- ControlNest5-66.cab.esj
- (78.72 KiB) Downloaded 432 times
-
- desk.esj
- (594.02 KiB) Downloaded 438 times
- Thom Davies
- Guru Member
- Posts: 530
- Joined: Tue, May 17 2005, 6:44PM
- Company Name: Dawn Group
- Country: NEW ZEALAND
- Location: Christchurch New Zealand
Re: kd fastner holes nesting on 2 pieces
Hi Mohan
I'd try to regen the cabinet in ecabinets 1st and then resend it to the machine and renest, or Just edit the code to take out the holes.
Cheers
Thom Davies
I'd try to regen the cabinet in ecabinets 1st and then resend it to the machine and renest, or Just edit the code to take out the holes.
Cheers
Thom Davies
- Josh Rayburn
- eCabinets Beta Tester
- Posts: 1263
- Joined: Wed, Jul 01 2009, 2:19PM
- Company Name: Halls Edge Inc
- Country: UNITED STATES
- Location: Stamford, CT USA
- Contact:
Re: kd fastner holes nesting on 2 pieces
Mohan,
You can change the KD fittings placement in the construction settings dialog. You can change the distance from front and distance from back of that edge of that particular part so you don't get the holes appearing on the part editor notch where they don't need to be.
jnr
You can change the KD fittings placement in the construction settings dialog. You can change the distance from front and distance from back of that edge of that particular part so you don't get the holes appearing on the part editor notch where they don't need to be.
jnr
Josh Rayburn
Hall's Edge, Inc.
CNC Machining Service
Dell Precision T3400
Win7 Professional 64 Bit/Core2Duo E8400 3ghz/4 GB Ram/NVIDIA Quadro FX570
Hall's Edge, Inc.
CNC Machining Service
Dell Precision T3400
Win7 Professional 64 Bit/Core2Duo E8400 3ghz/4 GB Ram/NVIDIA Quadro FX570
