Anyone have a Rev-a-shelf closet pull down rod 3d file? I am designing a large walk-in closet and want to show the space saving feature of these pull downs.
Thanks
Tim
Closet pull down rod
Moderators: Jason Susnjara, Clint Buechlein, Jason Susnjara, Clint Buechlein
-
tim lucas
- Guru Member
- Posts: 322
- Joined: Thu, Nov 29 2007, 5:18PM
- Company Name: Tim Lucas Custom Woodworks LLC
- Country: UNITED STATES
- Location: bell, florida
- Contact:
Closet pull down rod
Tim Lucas Custom Woodworks LLC
www.TLCW.us
www.TLCW.us
- George Davidson
- eCabinets Beta Tester
- Posts: 1585
- Joined: Tue, May 17 2005, 1:16PM
- Location: Norwood Pa.
Re: Closet pull down rod
Hi Tim
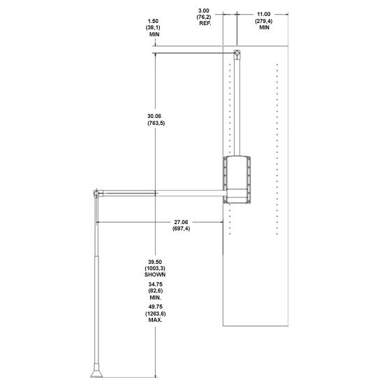
Here is one I just made it up
Here is one I just made it up
- Attachments
-
- closet pull down rod.jpg (3.61 KiB) Viewed 60283 times
-
- closet pull down rod.hsf
- (36.02 KiB) Downloaded 1935 times
- George Davidson
- eCabinets Beta Tester
- Posts: 1585
- Joined: Tue, May 17 2005, 1:16PM
- Location: Norwood Pa.
-
tim lucas
- Guru Member
- Posts: 322
- Joined: Thu, Nov 29 2007, 5:18PM
- Company Name: Tim Lucas Custom Woodworks LLC
- Country: UNITED STATES
- Location: bell, florida
- Contact:
Re: Closet pull down rod
George, Thank you so very much !!
They look awesome in her closet
Tim Lucas Custom Woodworks LLC
www.TLCW.us
www.TLCW.us
